
Malachit


+5 zdjęć

Malachit


+5 zdjęć
MAL-173
Powierzchnia:118.16 m²
4900 zł
Dostępność: 3 dni robocze
Novellus II G2
Technologia budowy:MUROWANY|
Poznaj cenę budowyPowierzchnia i wymiary
Rzuty i plan pomieszczeń
Kliknij na rzut, aby zobaczyć go w powiększeniu

Kliknij aby powiększyć
Parter
Powierzchnia: 113.2m²
Wiatrołap5.39 m²
Komunikacja6.06 m²
Schowek1.60 m²
Kuchnia z jadalnią13.74 m²
Pokój dzienny31.15 m²
WC2.36 m²
Pom. gosp.8.64 m²
Garaż35.28 m²
Pom. gosp.9.02 m²
Razem113.2m²
Szukasz działki?
ZNAJDŹ DZIAŁKĘ
Projekt o pow. 118.16 m² wymaga odpowiedniej działki. Sprawdź zweryfikowane działki na Śląsku — z mediami, MPZP i warunkami zabudowy.
38+
działek
4
powiaty
13
gmin
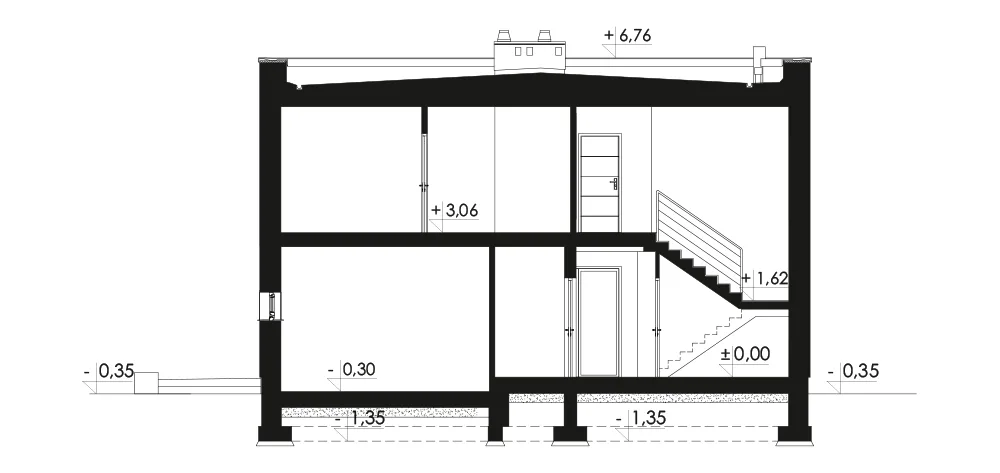
Elewacje i rysunki techniczne
Rysunki elewacji, przekrój budynku oraz plan usytuowania na działce.
Studio AdaptacjiZMIANY W
ZMIANY W
PROJEKCIE?
Chcesz wybudować dom według tego projektu, ale potrzebujesz wprowadzić kilka zmian? Skorzystaj z naszego Studia Adaptacji — bezpłatna wycena zmian i adaptacja przez ponad 100 sprawdzonych architektów na terenie całej Polski.
Bezpłatna wycena zmian
Ponad 100 architektów w całej Polsce
Szybka realizacja adaptacji

Zobacz również inne projekty
Ładowanie...
