
Malachit


+1 zdjęć

Malachit


+1 zdjęć
MAL-109
Powierzchnia:141.20 m²
4900 zł
Dostępność: 3 dni robocze
Directus I G1
Technologia budowy:MUROWANY|
Poznaj cenę budowyPowierzchnia i wymiary
Rzuty i plan pomieszczeń
Kliknij na rzut, aby zobaczyć go w powiększeniu

Kliknij aby powiększyć
Parter
Powierzchnia: 97.4m²
Wiatrołap4.41 m²
Komunikacja10.96 m²
Kuchnia9.29 m²
Salon z jadalnią31.00 m²
Pokój9.44 m²
Pom. gosp.5.71 m²
Garaż18.83 m²
Pom. gosp.2.35 (5.32) m²
Łazienka5.39 m²
Razem97.4m²
Szukasz działki?
ZNAJDŹ DZIAŁKĘ
Projekt o pow. 141.20 m² wymaga odpowiedniej działki. Sprawdź zweryfikowane działki na Śląsku — z mediami, MPZP i warunkami zabudowy.
38+
działek
4
powiaty
13
gmin
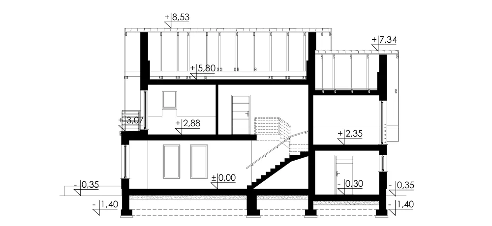
Elewacje i rysunki techniczne
Rysunki elewacji, przekrój budynku oraz plan usytuowania na działce.
Studio AdaptacjiZMIANY W
ZMIANY W
PROJEKCIE?
Chcesz wybudować dom według tego projektu, ale potrzebujesz wprowadzić kilka zmian? Skorzystaj z naszego Studia Adaptacji — bezpłatna wycena zmian i adaptacja przez ponad 100 sprawdzonych architektów na terenie całej Polski.
Bezpłatna wycena zmian
Ponad 100 architektów w całej Polsce
Szybka realizacja adaptacji

Zobacz również inne projekty
Ładowanie...
