
Malachit


+11 zdjęć

Malachit


+11 zdjęć
MAL-193
Powierzchnia:125.96 m²
5700 zł
Dostępność: 3 dni robocze
Crastinus I G2
Technologia budowy:MUROWANY|
Poznaj cenę budowyPowierzchnia i wymiary
Rzuty i plan pomieszczeń
Kliknij na rzut, aby zobaczyć go w powiększeniu

Kliknij aby powiększyć
Parter
Powierzchnia: 113.0m²
1.01 Wiatrołap3.64 m²
1.02 Garderoba3.27 m²
1.03 Pom. gosp.10.04 (13.15) m²
1.04 Garaż39.52 m²
1.05 WC2.93 m²
1.06 Komunikacja3.97 m²
1.07 Salon z jadalnią38.87 m²
1.08 Kuchnia10.74 m²
Razem113.0m²
Szukasz działki?
ZNAJDŹ DZIAŁKĘ
Projekt o pow. 125.96 m² wymaga odpowiedniej działki. Sprawdź zweryfikowane działki na Śląsku — z mediami, MPZP i warunkami zabudowy.
38+
działek
4
powiaty
13
gmin
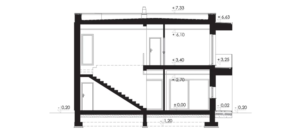
Elewacje i rysunki techniczne
Rysunki elewacji, przekrój budynku oraz plan usytuowania na działce.
Studio AdaptacjiZMIANY W
ZMIANY W
PROJEKCIE?
Chcesz wybudować dom według tego projektu, ale potrzebujesz wprowadzić kilka zmian? Skorzystaj z naszego Studia Adaptacji — bezpłatna wycena zmian i adaptacja przez ponad 100 sprawdzonych architektów na terenie całej Polski.
Bezpłatna wycena zmian
Ponad 100 architektów w całej Polsce
Szybka realizacja adaptacji

Zobacz również inne projekty
Ładowanie...
